

寻找理想的家,是一次漫长的旅行,“看得见”的家,“看得见”的未来生活,唯有实景,才能够给予购房者真实的“触感”。探访各大楼盘,听取众多销售说辞,再生动的文字刻画,终究不过是纸上谈兵,买房优选准现房,成为当下买房人普遍的共识。
作为昆明主城一环旁的高端改善性住宅,大华·翠湖映项目一直是市场关注的热点项目之一。去年6月项目才开盘,今年底就将实现交付,在楼市的这个特殊时期,大华集团云南公司在主城核心区域,用心写下了关于居住的故事。
大华翠湖映项目作为昆明壹号豪宅,展现了担当与实力,以无比的匠心和精湛的工艺,研磨雕琢每一个细节,尽可能真实呈现户型的每平每寸,让所见即为所得。从入户厅堂的至尊礼遇,到美学园林的诗意呈现,再到大平层室内空间的艺术打造,为客户带来美好感官体验的同时,更能感受到大华·翠湖映项目对时代审美的把握和对产品不计成本的投入。
实景准现房给客户一个真实可“鉴”的现在,领略清晰可见的幸福,带给客户美好的未来。相比纸上谈兵的场景描摹、货不对板的过度承诺,大华·翠湖映项目拿出的是所见即所得的硬核品质!
未来,在翠湖畔,尽揽一城菁华,遇鉴一生美好。

生态和繁华双重拥有
“买我们的客户手上可能不只一套房,但是我们这套是他们一定会住的”,这是前不久在大华翠湖映项目270°环景大平层高定样板间启幕会上,项目营销经理说过的一句话。
大华翠湖映项目以高端大平层为主,作为一个省会城市核心地段的顶级住宅,随着各类支持房地产发展政策的到来,吸引的不仅是板块内的改善需求,而是全城乃至全省、全国高净值人群核心资产配置的需求。
能够成为顶级住宅的有几个要素必不可少:核心位置、资源占有、高颜值和人性化设计、会所、精工交付品质和物业。
大华翠湖映项目所在的翠湖片区是昆明最早的核心区域,昆明城因“翠湖时代”而兴起。“一池翠湖水,半部昆明史”,这里是昆明历史与文脉最深的地区之一,汇聚了一城资源。片区内分布有10余所中小学和高校,而且基本都是各校的本部。
今天的翠湖及一二一大街片区最大的特点就是“正青春”。项目周边一切都是生机勃勃的,有“昆明之眼”翠湖、有一批高端的科创企业、有最高等的学府还有源源不断的年轻人才,它是昆明拼搏迸发锐意进取的写照。

“典藏级”高端改善产品
由于翠湖片区的特殊性,在这片有限的土地上未来很难再有可供大规模开发的住宅用地。
大华翠湖映在片区属于顶配项目。地块已经占据了片区最好的位置,高端改善性住宅的客户都不缺房子,唯有刷新认知让他们愿意拥有更好的“家”。
项目团队的策略是:给前期思考和设计研发的时间长一些;不是实景不开放,不看工地不买房;真诚面对客户,专注挖掘生活贴心细节,只为把极致的生活,交予城市塔尖圈层,让更高级的生活方式慢慢呈现。凭借过硬的“产品力”匠心打造,树立昆明楼市新的产品标杆。
去年10月,项目实景示范区开放,技惊四座,方寸之间成“城心”生活的自然美景。高度还原效果图,达成与自然的深层连接,匹配居者的尊贵身份。

12月,建筑面积约260平方米至285平方米“壹号作品”样板间揭幕,“楼王”产品的硬核产品力堪称达到了昆明主城高端住宅的天花板。

近期,项目开放了3号楼185㎡和2号楼182㎡全新升级的高级定制样板间,再度“内卷”。定制化重新打造已有的精装系统,为塔尖人群的生活提供了更多元更定制的选择。为业主带来更宽阔的空间享受,以舒适的空间尺度,烘托居者的格调与气质,让生活品味更高一层。


奢华大平层的引领者
每一户都与众不同,这才是“高定产品”的意义!
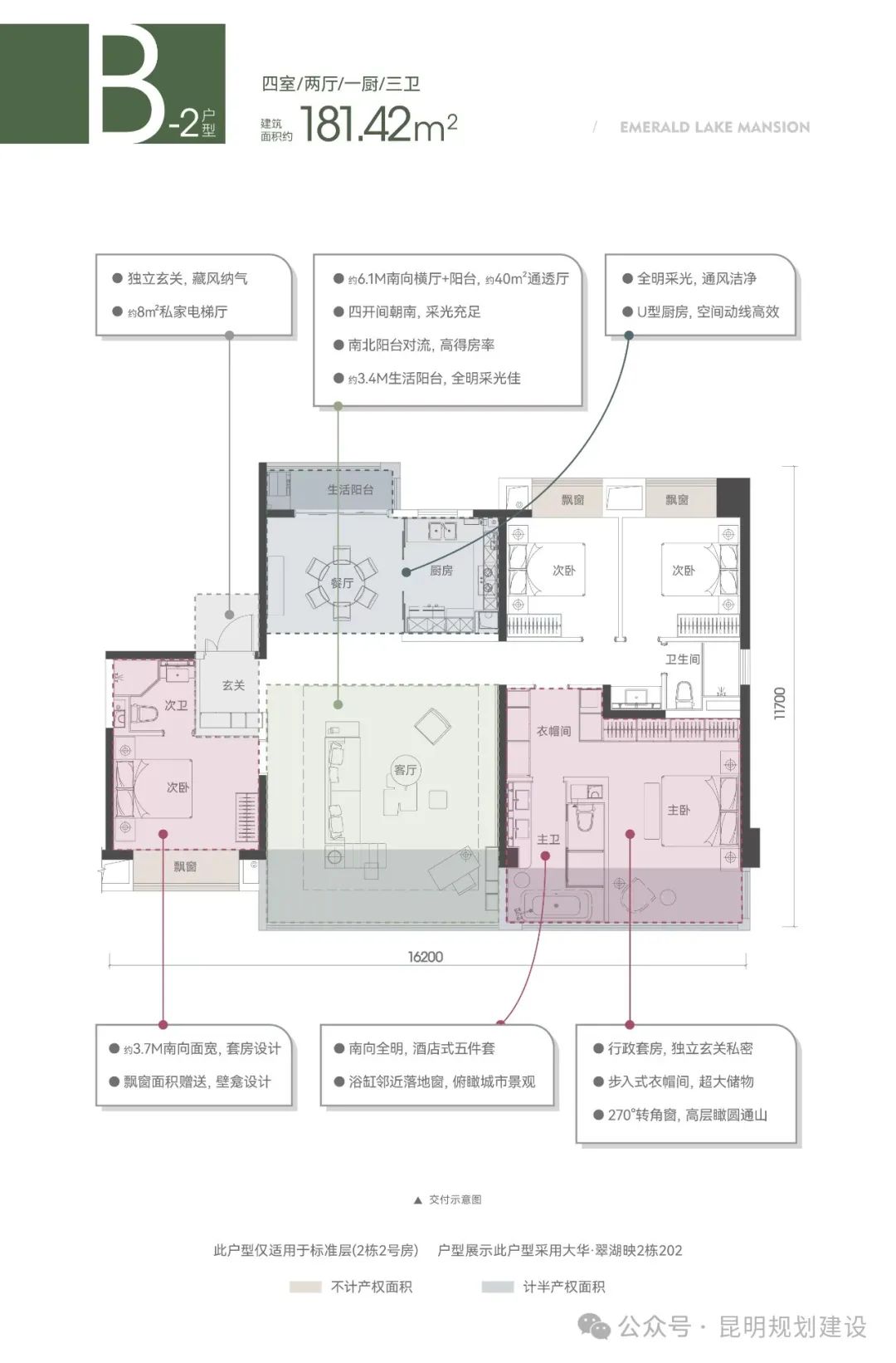
182㎡户型作为准现房发售的重量级选手,是最后登场的压轴作品,全盘仅2栋东端头这22套房源,每个楼层只有一套,非常稀缺。该户型为南北朝向,四室两厅三卫四阳台,户型室内不计入产权面积约为18㎡左右(四个阳台半面积、三个飘窗全面积),得房率高达87%,动静分区南北通透。

而185㎡的户型,仅从户型图上就能看出,室内空间感非常阔绰。

南北朝向,四室两厅三卫三阳台,户型室内不计入产权面积约为22.5㎡左右(三个阳台半面积、六个飘窗全面积),动静分离、南北通透。加上低密产品天然高得房率的优势,得房率近90%。
不仅面积尺度大胆、大气,在户型细节打磨上也做了多维度进阶,把改善属性拉到满级。
270°的全景视野,无建筑遮挡,宽阔的楼间距,方正的户型结构,两面的通透采光,让自然光肆意地“闯”入室内,客餐厅显得通透大气。室外山景、社区内景观园林,尽收眼底。

一面是家的温暖舒适,一面是园林的生机勃勃。实现了真正的无界。

理想生活的答案




今年买 今年住
每一座城市都有一个被称之为经典的著作,从一纸蓝图到美好兑现,都烙印着时光的刻度与匠心的底色。
放眼昆明主城,如果想同时占据核心、生态、顶尖三大维度,大华翠湖映项目必然是极其有限的选择之一。房子易买,景观难得。窗外风景赋予房子特殊价值,是同类其他无可比拟的。
目前大华翠湖映项目建设进度已达到准现房阶段,今年年底将实现交付。所有楼栋早已封顶,外立面实景也已呈现,准现房户型格局、楼间距、采光、双阳台等居住品质一目了然。
“看得见、摸得着”的准现房,让购房者可以切身感受楼盘的真实情况,带来“家”的安全感。亲眼所见的放心,让置业更加安心。
项目以真实的触觉、视觉、感觉等多维感受,无论是规划格局、园林景观、户型尺度以及建筑立面,都一目了然,同时还能体验社区氛围及物业服务,即买即入住,省去等待交付的时间、经济成本。直观感受社区布局、景观、户型,切实体验看得见的美好,优势显而易见。
实景现房呈现,不必等待的美好。
今年买,今年住!

往期荐读
01. 积极信号!昆明1至7月新建商品房价格同比涨了
02. 配建幼儿园、小学、中学,呈贡一地块调规……
03. 昆明地铁增加云南话报站?9号线改为环线?官方回复啦

END
